Moulin Vieux 18
Programme : Hangar logistique pour une exploitation maraîchère
Mission : Complète
Maîtrise d’ouvrage : Communauté de communes du Gésivaudan
Lieu : Pontcharra
Surface : 448 m² emprise au sol
Coût des travaux : 607 000€ HT
Etat : Début des travaux en septembre 2025



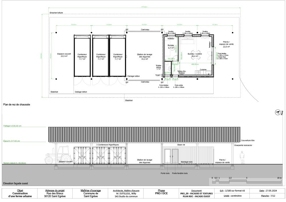
Ferme du Neron
Programme : conteneurs aménagés installés sous une grande halle agricole
Mission : Complète
Maîtrise d’ouvrage : Commune de Saint Egrève
Lieu : Saint Egrève
Surface : 335 m2 emprise au sol
Coût des travaux : 288 000€ HT
Etat : Achevé printemps 2025



Ferme des Millepousses
Programme : Bâtiment agricole pour ferme urbaine de maraîchage et production de micro-pousses
Mission : Conception et permis de construire
Maîtrise d’ouvrage : Association Millepousses
Lieu : Grenoble
Surface : 110m² emprise au sol
Coût des travaux : Auto-construction
Etat : Achevé printemps 2022



